Schachtabdeckungen Typ Wasserdicht

LRL-GMV - 5 kN/m² - begehbar, tagwasser- und geruchdicht

Typ

Schachtabdeckung tagwasser- und geruchdicht.

Belastung

5 kN/m² - begehbar gemäß DIN EN 1991-1-1.

Ausführung
  • Deckel aus Tränenblech in 3 auf 5 mm Stärke
  • Rahmen aus U-Profil
  • Material: Werkstoff Stahl (S235JR) oder Edelstahl 1.4301 (V2A)

Durchgangsmaß < lichte Schachtweite.

Beschreibung
  • Deckel aus Tränenblech zum besseren Ableiten von stehendem Wasser zur Verminderung der Rutschgefahr
  • der Rahmen besteht aus profiliertem Stahlblech mit Nut zur optimalen Aufnahme der Gummidichtung
  • das U-Profil dient gleichzeitig als Maueranker
  • in die Rahmennut eingelegte hochwertige Moosgummiprofildichtung (EPDM), austauschbar, frostsicher und witterungsbeständig
  • Verschluss durch Messing-Vierkantschrauben. Anzahl lt. Tabelle
  • mit einem Bedienungsschlüssel
  • mit Aushebemulde ab 810 mm Rahmenaußenmaß
Verwendungsmöglichkeit

Zum Abdecken von Schächten aller Art, wie z.B. Kabel-, Pumpen-, Elektro- oder Revisionsschächte, die nicht befahren werden. Zuverlässige Verhinderung von Oberflächenwasser und Geruchsbelästigung.

Außenmaß
in mm
lichte Weite in mm Höhe in mm Verschlüsse / Stück Gewicht in
kg ca.
Artikel-Nr.
verzinkt
Artikel-Nr.
Edelstahl
Sonderanfertigungen auf Anfrage       Artikelgruppe 111 126
310 x 310 185 x 185 50 4 6,0 10031512 10031591
410 x 410 285 x 285 50 4 10,0 10041512 10041591
510 x 510 385 x 385 50 4 14,0 10051512 10051591
610 x 610 485 x 485 50 4 19,0 10061512 10061591
710 x 710 585 x 585 50 4 25,0 10071512 10071591
810 x 810 685 x 685 50 8 31,0 10081512 10081591
910 x 910 785 x 785 50 8 38,0 10091512 10091591
1010 x 1010 885 x 885 50 8 46,0 10101512 10101591
1110 x 1110 985 x 985 50 8 54,0 10111512 10111591
1210 x 1210 1085 x 1085 50 8 64,0 10121512 10121591
1310 x 1310 1185 x 1185 50 8 72,0 10131512 10131591
610 x 810 485 x 685 50 6 25,0 10141512 10141591
810 x 1010 685 x 885 50 8 38,0 10171512 10171591
410 x 610 285 x 485 50 4 14,0 10461512 10461591
510 x 710 385 x 585 50 4 19,0 10571512 10571591

LR-GMV - 15 kN/m² - begehbar, tagwasser- und geruchdicht

Typ

Schachtabdeckung tagwasser- und geruchdicht.

Belastung

15 kN/m² begehbar gemäß DIN EN 1991-1-1.

Ausführung
  • Deckel aus Tränenblech in 4 auf 6 mm Stärke
  • Deckel mit untergeschweißtem Verstärkungsraster
  • Rahmen aus U-Profil
  • Material: Werkstoff Stahl (S235JR) oder Edelstahl 1.4301 (V2A)

Durchgangsmaß < lichte Schachtweite.

Beschreibung
  • Deckel aus Tränenblech zum besseren Ableiten von stehendem Wasser zur Verminderung der Rutschgefahr
  • der Rahmen besteht aus profiliertem Stahlblech mit Nut zur optimalen Aufnahme der Gummidichtung
  • das U-Profil dient gleichzeitig als Maueranker
  • in die Rahmennut eingelegte hochwertige Moosgummiprofildichtung (EPDM), austauschbar, frostsicher und witterungsbeständig
  • Verschluss durch Messing-Vierkantschrauben. Anzahl lt. Tabelle
  • mit einem Bedienungsschlüssel
  • mit Aushebemulde ab 810 mm Rahmenaußenmaß
Verwendungsmöglichkeit

Zum Abdecken von Schächten aller Art, wie z.B. Kabel-, Pumpen-, Elektro- oder Revisionsschächte, die nicht befahren werden. Zuverlässige Verhinderung von Oberflächenwasser und Geruchsbelästigung.

Außenmaß
in mm
lichte Weite in mm Höhe in mm Verschlüsse / Stück Gewicht in
kg ca.
Artikel-Nr. verzinkt Artikel-Nr. Edelstahl
Sonderanfertigungen auf Anfrage       Artikelgruppe 113 126
510 x 510 300 x 300 70 4 14,0 10052512 10052591
610 x 610 400 x 400 70 4 19,0 10062512 10062591
710 x 710 500 x 500 70 4 25,0 10072512 10072591
810 x 810 600 x 600 70 8 31,0 10082512 10082591
910 x 910 700 x 700 70 8 38,0 10092512 10092591
1010 x 1010 800 x 800 70 8 46,0 10102512 10102591
1110 x 1110 900 x 900 70 8 54,0 10112512 10112591
1210 x 1210 1000 x 1000 70 8 63,0 10122512 10122591
610 x 810 400 x 600 70 6 25,0 10142512 10142591
810 x 1010 600 x 800 70 8 38,0 10172512 10172591

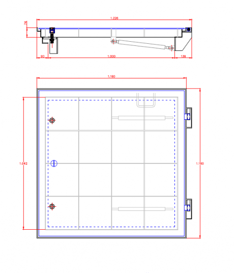
LR-GMV-ÖH - 15 kN/m² - begehbar, tagwasser- und geruchdicht, mit Öffnungshilfe

Typ

Schachtabdeckung mit Öffnungshilfe, tagwasser- und geruchdicht.

Belastung

15 kN/m² begehbar gemäß DIN EN 1991-1-1.

Ausführung
  • Deckel aus Tränenblech in 4 auf 6 mm Stärke
  • Deckel mit untergeschweißtem Verstärkungsraster
  • Rahmen aus Winkelprofil zum Einbetonieren
  • Material: Werkstoff Stahl (S235JR) oder Edelstahl 1.4301 (V2A)

Durchgangsmaß < lichte Schachtweite.

Beschreibung
  • der Deckel besteht aus Tränenblech zum besseren Ableiten von stehendem Wasser zur Verminderung der Rutschgefahr
  • hochwertige Moosgummiprofildichtung (EPDM), austauschbar, frostsicher und witterungsbeständig
  • Verschluss durch 2 Schraubverschlüsse aus Edelstahl
  • leichte Handhabung durch Öffnungshilfe mit Gasdruckfedern und Scharnieren sowie einer Zuklappsicherung mit Arretierung
  • mit einem Bedienungsschlüssel
  • Kranöse zum Aufsetzen auf den Schacht
  • Maueranker
Verwendungsmöglichkeit

Zum Abdecken von Schächten aller Art, wie z.B. Kabel-, Pumpen-, Elektro- oder Revisionsschächte, die nicht befahren werden. Zuverlässige Verhinderung von Oberflächenwasser und Geruchsbelästigung.

Außenmaß
in mm
lichte Weite in mm Höhe in mm Gewicht in kg ca. Artikel-Nr. verzinkt Artikel-Nr. Edelstahl
Sonderanfertigungen auf Anfrage     Artikelgruppe 113 126
826 x 780 600 x 600 180 84,0 10082712 10082791
926 x 880 700 x 700 180 98,0 10092712 10092791
1026 x 980 800 x 800 180 109,0 10102712 10102791
1126 x 1080 900 x 900 180 131,0 10112712 10112791
1226 x 1180 1000 x 1000 180 153,0 10122712 10122791
1426 x 1380 1200 x 1200 180 221,0 10402712 10402791
1680 x 1726 1500 x 1500 180 345,0 10702712 nicht lieferbar
2180 x 1226 2000 x 1000 180 289,0 10202712 10202791

SR-GMV - PKW - befahrbar für leichte PKW bis 30 kN, tagwasser- und geruchdicht

Neue Ausführung nach DIN EN 1090-2 Ausführungsklasse bis EXC2.

Typ

Schachtabdeckung tagwasser- und geruchdicht.

Belastung

Befahrbar für leichte PKW bis 30 kN zulässiges Gesamtgewicht (DIN EN 1991-1-1).

Ausführung
  • Deckel aus Tränenblech in 6 auf 8 mm Stärke
  • Rahmen aus U-Profil zum Einbetonieren
  • mit untergeschweißtem Verstärkungsraster
  • mit Moosgummiprofildichtung
  • Material: Werkstoff Stahl (S235JR) oder Edelstahl 1.4301 (V2A)
Beschreibung
  • tagwasser- und geruchdicht
  • befahrbar durch leichte PKW
  • der Deckel besteht aus Tränenblech zum besseren Ableiten von stehendem Wasser zur Verminderung der Rutschgefahr
  • der Rahmen besteht aus profiliertem Stahlblech mit Nut zur optimalen Aufnahme der Gummidichtung
  • das U-Profil dient gleichzeitig als Maueranker
  • in die Rahmennut eingelegte hochwertige Moosgummiprofildichtung (EPDM), austauschbar, frostsicher und witterungsbeständig
Verwendungsmöglichkeit

Zum Abdecken von Schächten aller Art, wie z.B. Kabel-, Pumpen-, Elektro- oder Revisionsschächte, die maximal durch leichte PKW befahren werden. Zuverlässige Verhinderung von Oberflächenwasser und Geruchsbelästigung.
Geeignet für PKW-Parkflächen und Stellplätze.

Außenmaß
in mm
lichte Weite in mm Höhe in mm Verschlüsse / Stück Gewicht in kg ca. Artikel-Nr. verzinkt Artikel-Nr. Edelstahl
Sonderanfertigungen auf Anfrage       Artikelgruppe 113 126
510 x 510 300 x 300 70 4 25,0 10053512 10053591
610 x 610 400 x 400 70 4 30,0 10063512 10063591
710 x 710 500 x 500 70 4 36,0 10073512 10073591
810 x 810 600 x 600 70 8 46,0 10083512 10083591
910 x 910 700 x 700 70 8 68,0 10093512 10093591
1010 x 1010 800 x 800 70 8 88,0 10103512 10103591
1110 x 1110 900 x 900 70 8 101,0 10113512 10113591
1210 x 1210 1000 x 1000 70 8 117,0 10123512 10123591
610 x 810 400 x 600 70 6 38,0 10143512 10143591
810 x 1010 600 x 800 70 8 68,0 10173512 10173591

SSR-GMV-125 - befahrbar KL B 125 kN, tagwasser- und geruchdicht

Neue Ausführung nach DIN EN 1090-2 Ausführungsklasse bis EXC2.

Typ

Schachtabdeckung tagwasser- und geruchdicht.

Belastung

Klasse B 125 - befahrbar durch PKW mit max. Radlast von 31,25 kN
gemäß DIN EN 1991-1-1.

Ausführung
  • Deckel aus Tränenblech in 6 auf 8 mm Stärke
  • mit untergeschweißtem Verstärkungsraster
  • Rahmen aus U-Profil zum Einbetonieren
  • Material: Werkstoff Stahl (S235JR) oder Edelstahl 1.4301 (V2A)
Beschreibung
  • der Deckel besteht aus Tränenblech zum besseren Ableiten von stehendem Wasser zur Verminderung der Rutschgefahr
  • der Rahmen besteht aus profiliertem Stahlblech mit Nut zur optimalen Aufnahme der Gummidichtung
  • das U-Profil dient gleichzeitig als Maueranker
  • in die Rahmennut eingelegte hochwertige Moosgummiprofildichtung (EPDM), austauschbar, frostsicher und witterungsbeständig
  • Verschluss durch Messingschrauben. Anzahl lt. Tabelle
  • mit einem Bedienungsschlüssel
  • mit Aushebemulden (siehe Foto)
Verwendungsmöglichkeit

Zum Abdecken von Schächten aller Art, wie z.B. Kabel-, Pumpen-, Elektro- oder Revisionsschächte, die max. durch PKW befahren werden. Zuverlässige Verhinderung von Oberflächenwasser und Geruchsbelästigung.

Außenmaß
in mm
lichte Weite in mm Höhe in mm Verschlüsse / Stück Gewicht in kg ca. Artikel-Nr. verzinkt Artikel-Nr. Edelstahl
Sonderanfertigungen auf Anfrage       Artikelgruppe 113 126
510 x 510 300 x 300 90 4 29,0 10055512 10055591
610 x 610 400 x 400 90 4 39,0 10065512 10065591
710 x 710 500 x 500 90 4 48,0 10075512 10075591
810 x 810 600 x 600 90 8 78,0 10085512 10085591
910 x 910 700 x 700 90 8 97,0 10095512 10095591
1010 x 1010 800 x 800 90 8 114,0 10105512 10105591
1110 x 1110 900 x 900 90 8 127,0 10115512 10115591
1210 x 1210 1000 x 1000 90 8 146,0 10125512 10125591

SSR-GMV-ÖH-125 - befahrbar KL B 125 kN, tagwasser- und geruchdicht, mit Öffnungshilfe

Neue Ausführung nach DIN EN 1090-2 Ausführungsklasse bis EXC2.

Typ

Schachtabdeckung mit Öffnungshilfe, tagwasser- und geruchdicht.

Belastung

Klasse B 125 - befahrbar durch PKW mit max. Radlast von 31,25 kN
gemäß DIN EN 1991-1-1.

Ausführung
  • Deckel aus Tränenblech in 8 auf 10 mm Stärke
  • mit untergeschweißtem Verstärkungsraster
  • Rahmen aus Winkelprofil
  • Material: Werkstoff Stahl (S235JR) oder Edelstahl 1.4301 (V2A)

Durchgangsmaß < lichte Schachtweite.

Beschreibung
  • der Deckel besteht aus Tränenblech zum besseren Ableiten von stehendem Wasser zur Verminderung der Rutschgefahr
  • Kranöse zum Aufsetzen auf den Schacht
  • hochwertige Moosgummiprofildichtung (EPDM), austauschbar, frostsicher und witterungsbeständig
  • Verschluss durch 2 Schraubverschlüsse aus Edelstahl
  • leichte Handhabung durch Öffnungshilfe mit Gasdruckfedern und Scharnieren sowie einer Zuklappsicherung mit Arretierung
  • mit einem Bedienungsschlüssel
Verwendungsmöglichkeit

Zum Abdecken von Schächten aller Art, wie z.B. Kabel-, Pumpen-, Elektro- oder Revisionsschächte, die max. durch PKW befahren werden. Zuverlässige Verhinderung von Oberflächenwasser und Geruchsbelästigung.

Außenmaß
in mm
lichte Weite in mm Höhe in mm Verschlüsse / Stück Gewicht in kg ca. Artikel-Nr. verzinkt Artikel-Nr. Edelstahl
Sonderanfertigungen auf Anfrage       Artikelgruppe 113 126
826 x 780 600 x 600 200 2 104,0 10085712 10085791
926 x 880 700 x 700 200 2 116,0 10095712 10095791
1026 x 980 800 x 800 200 2 127,0 10105712 10105791
1126 x 1080 900 x 900 200 2 153,0 10115712 10115791
1226 x 1180 1000 x 1000 200 2 179,0 10125712 10125791
1226 x 1680 1000 x 1500 200 2 268,0 10155712 10155791
1126 x 2180 1000 x 2000 200 2 356,0 10205712 10205791
1426 x 1380 1200 x 1200 200 2 257,0 10405712 10405791
1726 x 1680 1500 x 1500 200 2 402,0 10705712 nicht lieferbar

SSR-GMV-400 - befahrbar KL D 400 kN, tagwasser- und geruchdicht

Neue Ausführung nach DIN EN 1090-2 Ausführungsklasse bis EXC2.

Typ

Schachtabdeckung tagwasser- und geruchdicht.

Belastung

Klasse D 400 - befahrbar durch LKW mit max. Radlast von 100 kN
gemäß DIN EN 1991-2.

Ausführung
  • Deckel aus Tränenblech in 8 auf 10 mm Stärke
  • mit untergeschweißtem Verstärkungsraster
  • Rahmen aus Winkelprofil
  • Material: Werkstoff Stahl (S235JR) oder Edelstahl 1.4301 (V2A)

Durchgangsmaß < lichte Schachtweite.

Beschreibung
  • der Deckel besteht aus Tränenblech zum besseren Ableiten von stehendem Wasser zur Verminderung der Rutschgefahr
  • Verstärkung durch Gitterunterzug
  • mit 2 Aushebetaschen als Aushebehilfe
  • der Rahmen besteht aus Winkelprofil mit Nut zur optimalen Aufnahme der Gummidichtung
  • in die Rahmennut eingelegte hochwertige Moosgummiprofildichtung (EPDM), austauschbar, frostsicher und witterungsbeständig
  • Verschluss durch Messing-Vierkantschrauben
  • mit einem Bedienungsschlüssel
Verwendungsmöglichkeit

Zum Abdecken von Schächten aller Art, wie z.B. Kabel-, Pumpen-, Elektro- oder Revisionsschächte, die maximal mit LKW befahren werden. Zuverlässige Verhinderung von Oberflächenwasser und Geruchsbelästigung. Nicht für den fließenden Verkehr geeignet.

Außenmaß
in mm
lichte Weite in mm Höhe in mm Verschlüsse / Stück Gewicht in kg ca. Artikel-Nr. verzinkt Artikel-Nr. Edelstahl
Sonderanfertigungen auf Anfrage       Artikelgruppe 113 126
710 x 710 500 x 500 100 8 113,0 10077512 10077591
810 x 810 600 x 600 100 8 130,0 10087512 10087591
910 x 910 700 x 700 100 8 149,0 10097512 10097591
1010 x 1010 800 x 800 100 8 168,0 10107512 10107591
1110 x 1110 900 x 900 100 8 203,0 10117512 10117591
1210 x 1210 1000 x 1000 100 8 237,0 10127512 10127591
1210 x 1710 1000 x 1500 100 10 359,0 10157512 10157591
1210 x 2210 1000 x 2000 100 8 474,0 10207512 10207591
1410 x 1410 1200 x 1200 100 8 345,0 10407512 10407591
1710 x 1710 1500 x 1500 100 12 539,0 10707512 nicht lieferbar

SSR-GMV-ÖH-400 - befahrbar KL D 400 kN, tagwasser- und geruchdicht, mit Öffnungshilfe

Neue Ausführung nach DIN EN 1090-2 Ausführungsklasse bis EXC2.

Typ

Schachtabdeckung mit Öffnungshilfe und Scharnierkasten, tagwasser- und geruchdicht.

Belastung

Klasse D 400 - befahrbar durch LKW mit max. Radlast von 100 kN
gemäß DIN EN 1991-2.

Ausführung
  • Deckel aus Tränenblech in 8 auf 10 mm Stärke
  • mit untergeschweißtem Verstärkungsraster
  • Rahmen aus Winkelstahl
  • Material: Werkstoff Stahl (S235JR) oder Edelstahl 1.4301 (V2A)

Durchgangsmaß < lichte Schachtweite.

Beschreibung
  • der Deckel besteht aus Tränenblech zum besseren Ableiten von stehendem Wasser zur Verminderung der Rutschgefahr
  • mit Scharnierkasten zum Schutz der Scharniere
  • Kranöse zum Aufsetzen auf den Schacht
  • hochwertige Moosgummiprofildichtung (EPDM), austauschbar, frostsicher und witterungsbeständig
  • Verschluss durch 2 Schraubverschlüsse aus Edelstahl
  • leichte Handhabung durch Öffnungshilfe mit Gasdruckfedern und Scharnieren sowie einer Zuklappsicherung mit Arretierung
Verwendungsmöglichkeit

Zum Abdecken von Schächten aller Art, die befahren werden sollen. Zuverlässige Verhinderung von Oberflächenwasser und Geruchsbelästigung. Nicht für den fließenden Verkehr geeignet.

Außenmaß
in mm
lichte Weite in mm Höhe in mm Verschlüsse / Stück Gewicht in kg ca. Artikel-Nr. verzinkt Artikel-Nr. Edelstahl
Sonderanfertigungen auf Anfrage       Artikelgruppe 113 126
920 x 780 600 x 600 230 2 136,0 10087712 10087791
1020 x 880 700 x 700 230 2 156,0 10097712 10097791
1120 x 980 800 x 800 230 2 177,0 10107712 10107791
1220 x 1080 900 x 900 230 2 213,0 10117712 10117791
1320 x 1180 1000 x 1000 230 2 250,0 10127712 10127791
1320 x 1680 1000 x 1500 230 2 375,0 10157712 10157791
1320 x 2180 1000 x 2000 230 2 498,0 10207712 10207791
1520 x 1380 1200 x 1200 230 2 360,0 10407712 10407791
1820 x 1680 1500 x 1500 230 2 562,0 10707712 nicht lieferbar