Schachtabdeckungen Typ Bodenbelag

Kellerablauf Gr. 1

Typ

Kellerablauf aus hochschlagfestem, wärmebeständigen ABS-Kunststoff nach DIN EN 1253.

Ausführung mit:
  • Reinigungsverschluss
  • Geruchverschluss
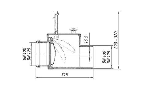
  • Ablaufstutzen DN 100, 1,5°
  • Rost Klasse K3 – begehbar
  • Schlammeimer

Möglich ist der Anschluss von Zuläufen DN 50 oder DN 70.

In der Universalausführung kann der Zulaufstutzen durch 2 mitgelieferte Blindverschlüsse an jeder beliebigen Zulaufseite angebracht werden.

Jährlich geprüft und überwacht durch LGA-Würzburg.

Beschreibung   Größe / mm Zulauf Gewicht / kg Artikel-Nr.
        Artikelgruppe 182
Kellerablauf Gr. 1 Rost grau 155 x 225   2,2 32130200
Kellerablauf Gr. 1 Rost grau 155 x 225 Zulauf DN 50 2,3 32135200
Kellerablauf Gr. 1 Rost grau 155 x 225 Zulauf DN 70 2,4 32134200
Kellerablauf Gr. 1 Rost grau 155 x 225 Zulauf DN 70 universal 2,5 32134299
Aufsatzstück Höhe = 100 mm     0,8 32017000
           
Einzelteile          
Kunststoff-Rost, alt, gebogen   155 x 225   0,5 12010220
Kunststoff-Rost   155 x 225   0,5 32130320
Edelstahlrost   155 x 225   1,0 32131720
Schlammeimer   203 x 122 x 100   0,1 12010013
Edelstahl-Aufsatzstück Höhe = 100 mm 155 x 225   2,5 32131770

Ballstau® 110 Rückstaukellerablauf

Typ

Rückstaukellerablauf aus ABS-Kunststoff für fäkalienfreie Abwässer.

Ausführung
  • zum Anschluss an Abflussrohre DN 100
  • mit Rost Klasse K3 – begehbar
  • mit Geruchverschluss
  • entspricht der DIN EN 13564 - Typ 5
  • Endverschluss für fäkalienfreies Abwasser
Dreifache Sicherheit durch:
  • automatisches Ballventil
  • selbsttätigen Klappverschluss
  • manuelle Handabsperrung

Ideal auch für Austausch- und Renovierungsmaßnahmen, da die Mitte des Ablaufstutzens genau 110 mm unter der Gehäuseoberkante liegt, was genau dem Baumaß alter Gussabläufe entspricht.

Höhenverstellbar durch zusätzliches Aufsatzelement.

Möglich ist der Anschluss von Zuläufen DN 50 oder DN 70.

In der Universalausführung kann der Zulaufstutzen durch 2 mitgelieferte Blindverschlüsse an jeder beliebigen Zulaufseite angebracht werden.

Jährlich geprüft und überwacht durch LGA-Würzburg.

Beschreibung   Größe / mm Zulauf Gewicht / kg Artikel-Nr.
        Artikelgruppe 188
Ballstau® 110 Rost grau 254 x 183 ohne 3,0 32340200
Ballstau® 110 Rost Edelstahl 254 x 183 ohne 3,5 32341700
           
Ballstau® 110 Rost grau 254 x 183 DN 50 mittig 3,5 32345200
Ballstau® 110 Rost Edelstahl 254 x 183 DN 50 mittig 3,5 32345800
           
Ballstau® 110 Rost grau 254 x 183 DN 70 mittig 3,5 32344200
Ballstau® 110 Rost Edelstahl 254 x 183 DN 70 mittig 3,5 32344800
           
Ballstau® 110 Rost grau 254 x 183 DN 70 universal 3,7 32344299
Ballstau® 110 Rost Edelstahl 254 x 183 DN 70 universal 3,7 32344999

Ballstau® 110 Ersatzteile

Innengarnitur zu Ballstau® 110

Innengarnitur komplett mit Ball, Dichtungen, Handabsperrung.
Artikel-Nr. 32340030

Deckelgarnitur zu Ballstau® 110

Bestehend aus Handabsperrung, Deckel, Dichtungen.
Artikel-Nr. 32330031

Dichtungssatz zu Ballstau® 110

Deckel-, Ball, Rahmen- und Kugeldichtung.
Artikel-Nr. 32340070

Kunststoff-Rost zu Ballstau® 110

Rost grau, zweiteilig, 254 x 183 mm.
Artikel-Nr. 32330320

Edelstahl-Rost zu Ballstau® 110

Rost Edelstahl, einteilig, 254 x 183 mm.
Artikel-Nr. 32331720

Aufsatzstück zu Ballstau® 110

Höhe = 100 mm, stapelbar um größere Höhenunterschiede auszugleichen.
Artikel-Nr. 32317000

Stausafe® Rückstauverschlüsse aus Kunststoff für fäkalienfreie Abwässer

STAUSAFE - E

Rückstauverschluss für durchgehende Rohrleitungen und fäkalienfreies Abwasser.

Eine automatisch wirkende Rückstauklappe aus Edelstahl.

Wartungsfreundliches Gehäuse aus ABS-Kunststoff. Mit Knebelschrauben zur Wartung ohne Werkzeug.

Beschreibung Nennweite Länge Artikel-Nr.
    Artikelgruppe 202
Stausafe E DN 100 302 mm 37667069
Stausafe E DN 125 315 mm 37667083
Stausafe E DN 150 376 mm 37667090
Stausafe E DN 200 445 mm 37667007

STAUSAFE H

Rückstauverschluss für durchgehende Rohrleitungen und fäkalienfreies Abwasser.

Eine automatisch wirkende Rückstauklappe aus Edelstahl.

Eine zusätzliche Handverriegelung (Notverschluss).

Wartungsfreundliches Gehäuse aus ABS-Kunststoff. Mit Knebelschrauben zur Wartung ohne Werkzeug. Verschlussgestänge aus Edelstahl. Prüfrohranschluss.

Beschreibung Nennweite Länge Artikel-Nr.
    Artikelgruppe 202
Stausafe H DN 100 302 mm 37667168
Stausafe H DN 125 315 mm 37667182
Stausafe H DN 150 376 mm 37667199
Stausafe H DN 200 445 mm 37667106

STAUSAFE RS

Rückstauverschluss für durchgehende Rohrleitungen und fäkalienfreies Abwasser nach DIN EN 13564 (DN 100 - DN 150).

Zwei automatisch wirkende Rückstauklappen aus Edelstahl.

Eine zusätzliche Handverriegelung (Notverschluss).

Wartungsfreundliches Gehäuse aus ABS-Kunststoff. Mit Knebelschrauben zur Wartung ohne Werkzeug. Verschlussgestänge aus Edelstahl. Prüfrohranschluss.

Beschreibung Nennweite Länge Artikel-Nr.
    Artikelgruppe 202
Stausafe RS DN 100 490 mm 37667267
Stausafe RS DN 125 503 mm 37667281
Stausafe RS DN 150 590 mm 37667298
Stausafe RS DN 200 615 mm 37667205

STAUSAFE F

Rückstauverschluss für durchgehende Rohrleitungen und fäkalienhaltiges Abwasser nach DIN EN 13564 (nur DN 100, DN 125).

Für fäkalienhaltiges Abwasser.

Motorisch betriebener Rückstauautomat. Ein in das Gehäuse eingebauter Sensor bewirkt das Schließen der Verschlusskappe bei rückstauendem Wasser durch eine Gewindespindel, die von einem Elektromotor angetrieben wird. Dank integrierter Notstromversorgung funktioniert der Stausafe F auch bei Netzausfall noch bis zu 50 Mal. Schließzeit nur ca. 6 Sekunden.

Verschlussklappen aus Edelstahl.

Beschreibung
  • zwei im Ruhezustand offenstehende Rückstauklappen, von denen eine bei Rückstau automatisch geschlossen wird. Die andere kann als Notverschluss und zur Funktionskontrolle manuell verriegelt werden
  • ein elektronisch gesteuerter Klappenverschluss
  • Elektromotor mit wasserdichtem Gehäuse
  • Batterie-Ladegerät für netzunabhängigen Betrieb
  • Prüfrohranschluss
  • wartungsfreundliches Gehäuse aus ABS-Kunststoff
  • Knebelschrauben zur Wartung ohne Werkzeug
  • optische und akustische Warnung
  • gebäudeleitfähig
  • Dichtkraft 500 Newton
  • Netzanschluss 230V / 0,5 A
Beschreibung Nennweite Länge Artikel-Nr.
    Artikelgruppe 202
Stausafe F DN 100 490 mm 37661562
Stausafe F DN 125 503 mm 37661586
Stausafe F DN 150 590 mm 37661593
       
Umbausatz Stausafe RS in Stausafe F DN 100 / DN 125   37664402
Umbausatz Stausafe RS in Stausafe F DN 150   37664426

Zubehör

Kunststoff-Kellerablauf Gr. 1 Artikel-Nr.
Kunststoff-Rost, alt, gebogen, 155 x 225 x 18 mm 12010220
Kunststoff-Rost, gerade, 155 x 225 x 18 mm, grau 32130320
Kunststoff-Eimer, 203 x 122 x 100 mm 12010013
Rost, neu, gerade, Edelstahl, 155 x 225 mm 32131720
Edelstahl-Aufsatzstück, Höhe = 100 mm 32131770
Kunststoff-Aufsatzstück, Höhe = 100 mm 32017000
Rückstaukellerabläufe Ballstau® 110 Artikel-Nr.
Aufsatzstück, Höhe = 100 mm 32317000
Bedienungsanleitung 32330050
Zulauf DN 50 32115220
Zulauf DN 70 32114220
Zulauf DN 100 (bitte technisch klären) 32111220
Blindstopfen 32114230
Kunststoff-Rost – zweiteilig 32330320
Einteiliger Rost aus Edelstahl, nicht poliert 32331720
Edelstahlschraube M 8 für Knebelverschluss 32340091
Knebelverschluss 32340033
Schlammeimer aus Kunststoff 32330013
Innengarnitur komplett 32340030
Ball 240 gr. 32330036
Dichtungssatz 32340070
Rückstauklappe 32340090
Prüfrohr 32319000
Rückstaukellerablauf Ballstau® 3 Artikel-Nr.
Aufsatzstück, H = 100 mm 32317000
Bedienungsanleitung 32330050
Zulauf DN 50 32115220
Zulauf DN 70 32114220
Blindstopfen 32114230
Einteiliger Rost aus Edelstahl, nicht poliert 32331720
Innengarnitur komplett 32330030
Dichtungssatz 32330070
Ball 240 gr. 32330036
Rückstaukellerablauf Ballstau® ALT PA-I 1329 Artikel-Nr.
Aufsatzstück, Höhe = 100 mm 32317000
Zulauf DN 50 32115220
Zulauf DN 70 32114220
Kunststoff-Rost – einteilig, gerade 12310320
Kunststoff-Rost – einteilig, gebogen 32310220
Einteiliger Rost aus Edelstahl, nicht poliert 32331720